Coesfeld:
Wohn- und Geschäftshaus mit Gaststätte als Top-Anlage!
Objekt-Nr.: 298

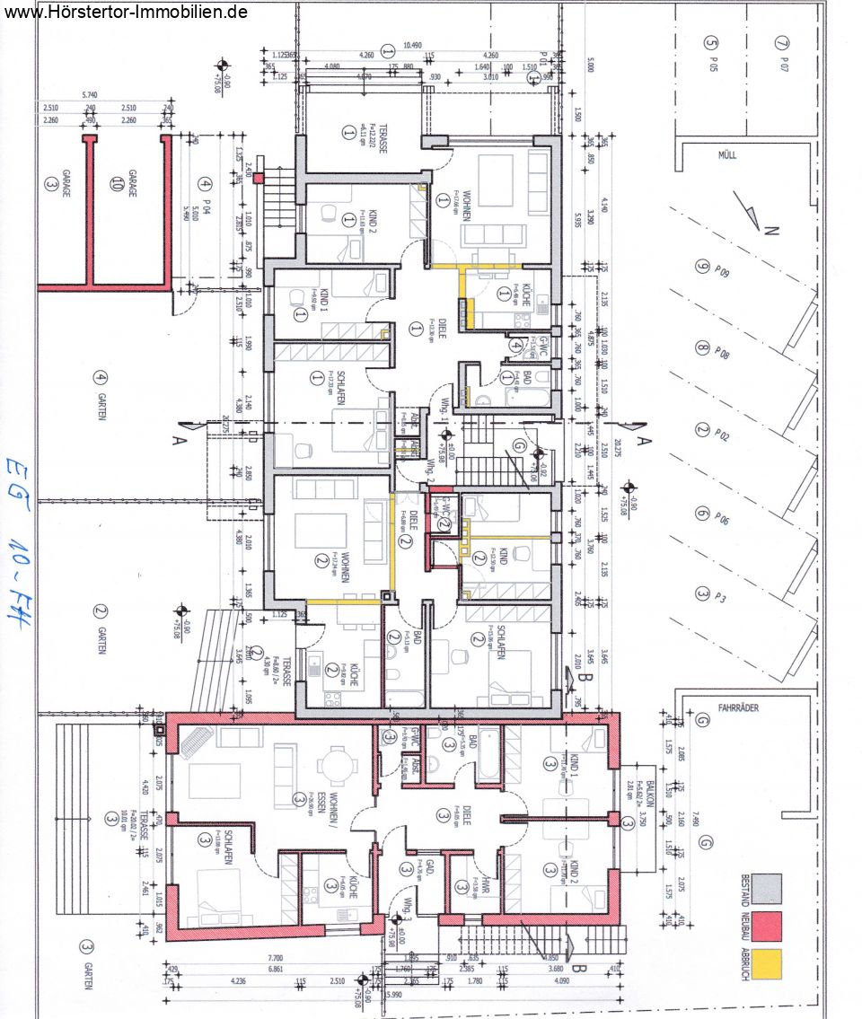
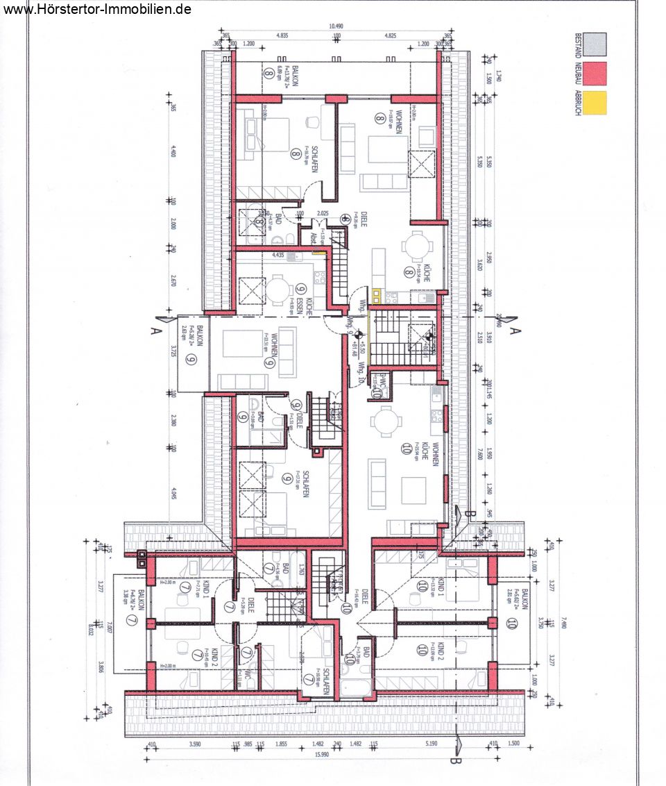
5-Fam.Haus mit Gaststätte u. Außengastronomie

Gesamtfläche ca.:
492 m²
Hauptfläche ca.:
387 m²
Preis:
Preis auf Anfrage
Das verklinkerte Wohn- und Geschäftshaus verfügt insgesamt über 5 Wohnungen mit ca. 387 m² Wohnfläche, überwiegend in einem jungen Haus von 1991, sowie über eine Gewerbefläche mit ca. 105 m² mit weiteren Nebenflächen, die bis Mitte der Achtziger Jahre eine Bank beherbergte und seitdem als Publikumsmagnet eine sehr solide frequentierte, urige Gaststätte mit Kamin, Kegelbahn und Pergola-Außenbereich. Zusätzlich gibt es noch eine Unterbringungsmöglichkeit für z. B. Personal im Souterrain von ca. 35 m². Die Ausstattung der Wohnungen, z. B. die Bäder und die hochwertigen Holz-Sprossenfenster mit Isolierverglasung, befinden sich auf ordentlichem Stand der neunziger Jahre, es gibt insgesamt keinen Modernisierungsstau, lediglich die Ölzentralheizung könnte in den nächsten Jahren ausgetauscht werden. Darüber hinaus gibt es noch eine Doppelgarage, einen Wintergarten, einen Pavillon und einen schön angelegten Südwest-Garten. Trotz moderater, noch steigerungsfähiger Mieten beträgt das derzeitige Kaltmietpotenzial gut 39.000 € p. a.. Zusätzlich interessant: ggf. kann eine Teilfläche des hübschen Gartenbereichs noch bebaut werden. EA für Gewerbefläche: V, 135 kwh, Öl, 1981; für Wohnfläche: B, 229 kwh, Öl, 1981.
Ausgezeichnete, attraktive und werbewirksame Lage mitten im Zentrum des Ortsteils. Sämtliche Versorgungsmöglichkeiten für den täglichen Bedarf befinden sich in der Nachbarschaft wie auch eine gute öffentliche Parkplatzsituation.
Die von uns gemachten Informationen beruhen auf Angaben der Eigentümer. Für die Richtigkeit und Vollständigkeit der Angaben kann deshalb keine Gewähr bzw. Haftung übernommen werden. Zwischenverkauf/-Vermietung und Irrtümer sind daher vorbehalten.
Wir weisen auf unsere Allgemeinen Geschäftsbedingungen hin. Durch weitere Inanspruchnahme unserer Leistungen erklären Sie die Kenntnis und Ihr Einverständnis.
Das könnte Ihnen auch gefallen
Wunderschöner Neubau-Bungalow!
Für den Anleger: sehr interessantes Mehrfamilienhaus mit Potential!
Interessantes Wohn- und Geschäftshaus mit Ladenlokal!

Hörstertor Immobilien
Herr Bernd Wortmann
Rotbuchenweg29
48159 Münster
Büro: +49 251 974457-22
Fax: +49 251 974457-21
48653 Coesfeld
Nordrhein-Westfalen




















